Устройство и принцип работы котла КВр-4,0 на угле с ОУР
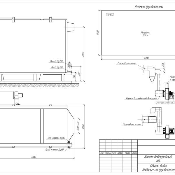
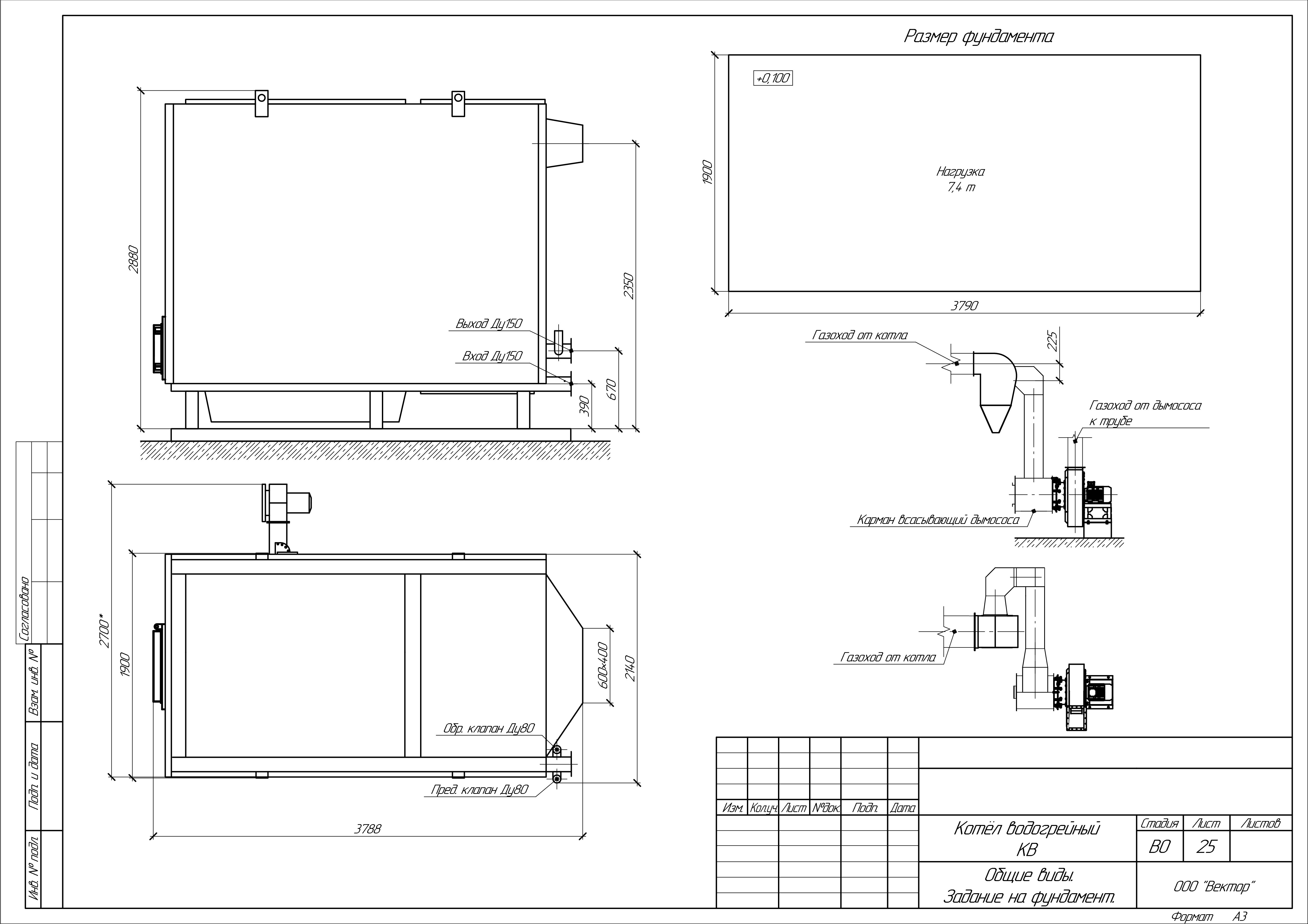
Котел КВр-4,0 имеет двухблочное горизонтальное строение, состоящее из ручной топки и котельного блока с конвективным газоходом, внутри которого циркулирует нагреваемая жидкость. Два блока котельного агрегата соединены в единую сварную конструкцию, защищенную теплоизоляцией.
Топка ОУР состоит из системы труб, которые охлаждаются водой, что исключает прогорание металлических поверхностей. Между ними расположен уголок, которых помогает воздуху равномерно заполнять всю площадь топки. Воздух в топку подается системой вентиляции, распложенной под решеткой. Таким образом топливо на решетке сжигается в полукипящем слое, который представляет собой промежуточное состояние топлива между неподвижным и кипящим слоем угля. Этот принцип сжигания топлива снижает химический и механический недожег.
Условное обозначение
Котел КВр-4,0 на угле с топкой ОУР, где:
- К — котел;
- В — водогрейный;
- р — ручная топка;
- 4,0 — мощность котла, МВт;
- О — охлаждаемая;
- У — угловая;
- Р — решетка.
Особенности и преимущества
- минимальные потери тепла;
- высокий уровень КПД;
- ручная подача топлива;
- большая производительность оборудования;
- высокая надежность конструкции;
- экономичность во время работы;
- низкие требования для настройки и установки.
Монтаж котла КВр-4,0 с ручной топкой ОУР
Котел КВр-4,0 на угле с топкой ОУР поставляется в удобном двублочном исполнении (котел и топка) в полной заводской сборке, и легко стыкуются при монтаже. Устанавливается на предварительно выровненную поверхность без необходимости в строительстве специального фундамента. Крепится к поверхности при помощи анкерных болтов.
Монтаж котельного оборудования производится с соблюдением СНиП 11-35-76 «Котельные установки» и «Правил устройства и безопасной эксплуатации паровых и водогрейных котлов». Установка и пуско-наладочные работы выполняют специалисты, которые имеют разрешение на проведение данных работ.
Купите угольный котел КВр-4,0 с ОУР на нашем сайте
Приобрести КВр-4,0 на угле с топкой ОУР и другие модификации можно через нашу компанию. Также возможен предварительный заказ оборудования через сайт и форму обратной связи. Дополнительно покупатели имеют возможность заказать котел по телефону. Предварительно необходимо ознакомиться с характеристиками.

